About this listing
Featuring warm timber accents throughout, this two story brand new house is right across the road from the beach at Separation Creek.
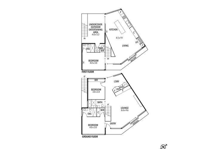
Across two levels, there are two living areas, two TVs, three bedrooms, 3 bathrooms and additional powder room, ocean view patio, sheltered entertaining deck with Weber BBQ, and full kitchen with dishwasher and coffee machine.
Upstairs houses the main living area, kitchen, dining, and sheltered outdoor entertaining deck. The kitchen is fully equipped including electric stove top and oven, dishwasher and Breville coffee machine. The adjoining covered outdoor entertaining deck is North facing and protected from the weather, and includes a large TV and Weber BBQ.
Relax on the comfy couch in the upstairs living area, by the wood fireplace looking out to sea, or watching something on the Smart TV. The main bedroom is also upstairs, featuring views to the ocean from the king size bed, with ensuite bathroom.
Downstairs houses a second living area with large Smart TV, family bathroom with bath, and two bedrooms - one with king bed and ensuite bathroom, the other with 2 single bunk beds. The european style laundry has washing machine, dryer, laundry tub, and access straight outside to the clothes line.
Underfloor heating system keeps downstairs warm, a wood fire, reverse cycle air conditioner and ceiling fan control upstairs temperatures. Being newly built, the house contains double glazed windows, and is oriented on the block in a solar passive design to make the most of the winter sunlight and protect from the Summer sun. There is NBN Wifi throughout the house.
The back yard is fully fenced, with both lawn and gravel areas.
A really unique feature for the Separation Creek/Wye River area is the location - being on a totally flat block, right across the road from Separation Creek beach. There is also a pathway that goes under the Separation Creek bridge to the beach, so you don't have to actually cross the road to get to the sand.
The start of Paddy's path is nearby, which is a walking track from Separation Creek to Wye River above the Great Ocean Road, and at low tide this walk can also generally be done along the beach.
PRICING
Couples rate: The 2 person rate is for couples sharing the same bed and using the adjoining ensuite bathroom.
If you are 2 people needing two bedrooms, please select the 3 person rate.
All pricing is based on the amount of guests staying, and beds/bedrooms used. Please ensure you book for the correct amount of guests, and confirm how many beds/bedrooms you will be requiring during your stay, so that we have accurate booking information prior to your arrival.
Important:
No parties, events or gatherings of excess people
No smoking, vaping or illegal activity
Quiet hours between 10pm - 8am
Additional accommodation is not allowed on site by way of tents, caravans, campervans or similar



















